为什么需要“脚手架图片大全”?
很多工地新人拿到厚厚一摞脚手架图纸就头大,其实把图纸拆成“图例、节点、立面、剖面”四大类,再配合高清脚手架图片大全,就能像看连环画一样快速理解。下面用问答形式,手把手带你拆解。

(图片来源网络,侵删)
Q1:脚手架图片大全里最常见的五种图例长什么样?
答案:立杆、横杆、剪刀撑、连墙件、脚手板。
1. 立杆
- 符号:一条竖直粗实线,顶端常带“Φ48×3.0”字样。
- 现场对应:整根6m镀锌钢管,每隔1.5m用对接扣件接长。
2. 横杆
- 符号:水平细实线,两端带“×”表示扣件。
- 现场对应:两端带防滑扣的短横杆,步距一般1.8m。
3. 剪刀撑
- 符号:交叉45°双虚线。
- 现场对应:旋转扣件固定的斜向钢管,每四跨一道。
4. 连墙件
- 符号:小圆圈内加“WL”。
- 现场对应:预埋短钢管+双扣件,拉结点水平间距≤3跨。
5. 脚手板
- 符号:连续矩形阴影。
- 现场对应:钢笆片或木脚手板满铺,端头用铁丝双股绑扎。
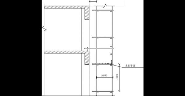
Q2:拿到立面图后,如何30秒锁定危险区域?
答案:先看三步——找剪刀撑、数连墙件、查脚手板。
- 找剪刀撑:立面图若无连续“X”形符号,说明抗侧向力不足,必须补设。
- 数连墙件:立面图右侧标注“WL@3.0×3.6”表示水平3m、竖向3.6m一处,若间距过大需加设。
- 查脚手板:阴影不连续处就是临边洞口,需加1.2m高防护栏杆。
Q3:剖面图里那些“小三角”到底代表什么?
答案:小三角是可调底座,用于调节立杆标高。
- 符号:等腰三角形+竖线。
- 现场做法:底板厚度≥5mm,螺杆伸出长度≤200mm,防止受压弯曲。
- 易错点:很多新人把“小三角”误当成垫木,结果导致整架沉降不均。
Q4:如何利用脚手架图片大全做技术交底?
答案:把高清节点照片插入PPT,对照规范逐条讲解。
交底模板示例
| 图片编号 | 节点名称 | 规范条文 | 现场检查要点 |
|---|---|---|---|
| IMG-05 | 立杆对接 | JGJ130-6.3.3 | 相邻立杆接头错开≥500mm |
| IMG-12 | 连墙件 | JGJ130-6.4.1 | 预埋件抗拔力≥10kN |
| IMG-18 | 脚手板铺设 | JGJ130-7.3.1 | 端部搭接长度≥150mm |
Q5:遇到异形结构,图纸与现场不符怎么办?
答案:三步解决——拍照、建模、复核。

(图片来源网络,侵删)
- 拍照:用手机全景模式拍下现场轮廓,导入CAD做底图。
- 建模:用Tekla或Revit按实际尺寸建三维脚手架模型,导出轴测图。
- 复核:把模型截图与原图纸叠图,差异处用红色云线标注,提交设计确认。
Q6:夜间看图总眼花,有没有快速记忆口诀?
答案:口诀是“立横剪连板,立面找WL,剖面看三角,交底用照片”。
- 立:立杆一条线
- 横:横杆两条杠
- 剪:剪刀撑叉叉
- 连:连墙件圆圈
- 板:脚手板阴影
附:脚手架图片大全获取渠道
1. 住建部《建筑施工高处作业图集》电子版,官网免费下载。
2. 各省质监站“安全文明图库”,搜索“脚手架”关键词即可。
3. 企业自建BIM族库,导出高清PNG,分辨率≥300dpi。
最后提醒
再全的脚手架图片大全也只是工具,关键还是对照规范、结合现场、动态复核。下次拿到图纸,先按本文五问五答过一遍,你会发现原本复杂的线条立刻变成可落地的施工语言。

(图片来源网络,侵删)
评论列表